Что такое студийная квартира в 2025 году
Студийная квартира — это однопространственное жильё, где кухня, гостиная, рабочая зона и спальня находятся в одном объёме без капитальных перегородок. С инженерной точки зрения это «открытая планировочная единица» с единственным изолированным помещением — санузлом. Всё остальное — поле для зонирования и работы с мебелью.
Ключевой момент: в студии планировка создаётся не стенами, а мобилиарной структурой — мебелью, светом, напольными покрытиями и лёгкими перегородками. Поэтому любая студийная квартира, зонирование, мебель, купить которую вы решили, напрямую определяет удобство жизни, а не просто внешний вид.
Краткий исторический контекст: от лофтов до массовых студий
До 1980‑х идея «квартира без стен» больше ассоциировалась с художественными мастерскими и промышленными лофтами в Нью‑Йорке. Большие пространства без перегородок использовали как гибкие рабочие зоны.
В 1990‑е концепция распространилась в Европу: архитекторы стали проектировать апартаменты open-space как символ «свободного образа жизни». В Россию и СНГ студийные квартиры массово пришли после 2005–2010 годов, когда девелоперы начали активно уменьшать метраж, а спрос на доступное жильё в городах резко вырос.
К 2025 году студия — это уже не эксперимент, а стандартный тип жилья в новых комплексах. Одновременно выросла детализация требований: если раньше хватало «кровати и кухни», то сегодня все ожидают нормальное рабочее место, систему хранения, мини-гостиную и хотя бы условную приватность спального места. Эта эволюция и привела к тому, что зонирование и функциональная мебель стали критическими инженерными задачами, а не «декором».
Базовые термины: зонирование и функциональная мебель
Определения без воды
1. Зонирование — это проектное разделение единого помещения на функциональные участки (зоны) без устройства капитальных стен. Используются:
— приёмы планировки (расположение мебели, проходов);
— разница в освещении;
— контраст материалов и фактур;
— лёгкие перегородки, ширмы, стеллажи;
— подиумы и уровни потолка.
2. Функциональная мебель — мебельные модули с повышенной полезностью на единицу площади:
— совмещают несколько функций (кровать-диван, стол-стеллаж);
— трансформируются (складываются, выдвигаются, разворачиваются);
— включают встроенные системы хранения.
3. Мебель-трансформер — подвид функциональной мебели, где важна механика трансформации: подъемные механизмы, газлифты, поворотные оси, раздвижные рамные системы. Именно такую мебель трансформер для студийной квартиры купить сейчас стремятся, чтобы из 25–30 м² «выжать» полноценный набор функций.
Как всё это работает вместе
Студия — это всегда компромисс: каждая зона не может быть большой, поэтому её «дособирают» мебелью. Грубо говоря, зонирование — это план, функциональная мебель — инструмент его реализации.
Простейшая логика:
— Зонирование распределяет «где что происходит».
— Мебель и свет делают эти «где» удобными и технически корректными (эргономика, проходы, безопасность).
Диаграммный взгляд на студию: описания вместо чертежей
Схема потоков движения

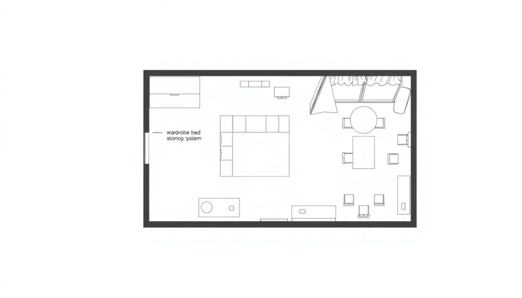
Представим базовую студию 28 м² прямоугольной формы. Простейшая диаграмма потоков движения (словесно):
— Входная дверь — слева.
— Вдоль левой стены — гардероб/система хранения.
— По центру напротив окна — зона диван/кровать.
— Справа ближе к окну — обеденный/рабочий стол.
— По правой стене ближе к входу — кухонный гарнитур.
Текстовая «диаграмма» потоков:
— Поток 1: «улица → прихожая → кухня» (приготовление еды).
— Поток 2: «улица → прихожая → рабочий стол → зона отдыха».
— Поток 3: «кухня → обеденная зона → зона отдыха/сон».
Критерий качественного проекта зонирования студийной квартиры под ключ — отсутствие пересечений потоков в «узких горлышках», например, чтобы человек не ходил через спальное место к холодильнику.
Диаграмма вертикального использования
Для студии высота — такой же ресурс, как и квадратные метры. Если расписать вертикальное использование:
— 0–60 см: выдвижные шкафы, нижние модули кухни, подиумы с хранением.
— 60–120 см: основная рабочая поверхность, сидячие зоны.
— 120–200 см: навесные шкафы, стеллажи над столом, антресоли.
— 200+ см: редко используемые вещи, сезонное хранение.
Функциональная мебель для студии заказать сейчас часто предлагают с уже продуманной «вертикальной логистикой»: подиумы с выкатными ящиками + высокий шкаф до потолка + антресольная зона над входом. Это технически более эффективно, чем просто «низкий шкаф + высокий пустой потолок».
Типы зонирования в студийной квартире: от «мягкого» к «жёсткому»
1. Световое зонирование
Классический приём — задавать границы не стенами, а сценариями освещения:
— трековые светильники над кухней;
— локальные бра и торшеры над зоной отдыха;
— направленный свет над рабочим местом.
Технически это «зонирование по световым контурам». В проекте электрики каждый контур привязан к своей зоне, а выключатели группируются логически: один сценарий — «работа», другой — «вечер», третий — «гости».
2. Зонирование мебелью
Самый практичный вид. Примеры:
— диван спинкой к кухне — получается естественная граница «гостиная/кухня»;
— высокий стеллаж-перегородка между кроватью и остальной комнатой;
— кухонный остров или барная стойка как разделитель «готовка/обед».
Такое зонирование легко меняется: переставили модуль — получили другой сценарий. Именно здесь сильнее всего влияет выбор: студийная квартира зонирование мебель купить можно без капитального ремонта, просто грамотно подобрав модули и их размеры.
3. Зонирование уровнями
Подиум под кроватью или рабочей зоной, многоуровневый потолок, различная высота напольного покрытия. При правильном расчёте нагрузок и высоты (обычно 150–300 мм) подиум становится и зонирующим элементом, и контейнером для хранения.
Схематично (словесно):
— У окна подиум высотой 200 мм, на нём — матрас.
— В подиуме — выкатные ящики 600–800 мм глубиной.
— Перед подиумом — зона с диваном или столом на «нулевом» уровне.
Функциональная мебель: инженерный подход
Ключевые категории модулей
1. Подъемные кровати
Вертикальные или горизонтальные механизмы, превращающие кровать в шкаф или диван. Для студий особенно актуальна система «кровать-гардероб» с газлифтами и страховкой от самопроизвольного открытия.
2. Раздвижные системы
Шкафы и перегородки на направляющих. Используются и как хранение, и как подвижные «стены». Важно смотреть на:
— толщину профиля,
— качество роликов,
— акустическое поведение (шум).
3. Модули 2-в-1 и 3-в-1
Примеры:
— диван с полноценным матрасом 140–160 см для ежедневного сна;
— обеденный стол, трансформирующийся в рабочий (меняется высота/ширина);
— тумба-ТВ с встроенным рабочим местом.
4. Интегрированные системы хранения
Кухни с высоким верхним рядом до потолка, антресоли над входом, подоконники-лавки с ящиками. Это снижает нагрузку на остальное пространство.
Сравнение с классической мебелью
Обычная «квартирная» мебель проектировалась под раздельные комнаты: отдельная спальня, отдельная кухня. В студии такой подход приводит к трём типичным проблемам:
— перегруженность объёма (слишком много корпусов);
— нарушение проходов (широкие шкафы в узкой зоне);
— нестыковка по функциям (кровать+диван+стол — все отдельно, не связаны).
Функциональная мебель решает это за счёт интеграции: один модуль закрывает сразу несколько задач. Это особенно критично, когда речь идёт о метраже до 30 м² и о рациональном дизайне студийной квартиры с зонированием, цена которого зависит не только от отделки, но и от сложности механики мебели.
Как подойти к зонированию студии в 2025 году
Пошаговый алгоритм
1. Зафиксировать набор функций
Сон, работа, готовка, хранение, хобби, приём гостей. Важно честно оценить: что реально нужно ежедневно, а что можно «разворачивать по запросу».
2. Построить диаграмму активностей
Для каждого времени суток прописать сценарии:
— утро: «сон → ванная → завтрак → работа»;
— день: «работа → приготовление еды → отдых»;
— вечер: «гости/домашние → просмотр контента → сон».
Это помогает определить, какие зоны могут быть совмещены (например, обеденный стол = рабочий стол), а какие лучше развести.
3. Определить стационарные зоны
Кухня и санузел привязаны к инженерным коммуникациям. Всё остальное — гибко.
4. Разметить проходы
Минимальный комфортный проход — 800–900 мм, критический минимум — 600 мм. В проекте эти коридоры нельзя перекрывать даже трансформируемой мебелью.
5. Подобрать типы мебели под сценарии
Если вы часто принимаете гостей — приоритет диван+обеденный стол. Если вы много работаете из дома — рабочее место должно быть постоянным, а не «уголок на подоконнике».
Пример реального сценария
Студия 26 м², высота потолков 2,8 м, один большой оконный проём.
— У входа — шкаф до потолка 60 см глубиной.
— Справа от входа — кухонная линия 3,0 м с высоким верхним рядом.
— У окна — подиум 180×200 см для кровати с выкатными ящиками.
— Перед подиумом — компактный диван 160 см шириной.
— Слева от окна — стол-трансформер 100×60 см, раскладывается до 160×80 см.
Такое решение создаёт три читаемые зоны: «кухня», «гостиная/работа», «сон», при этом не жертвуя проходами и хранением.
Сравнение вариантов мебели и схем зонирования
Зона сна: диван или кровать?
— Диван-кровать
+ экономия площади,
+ удобно принимать гостей,
– ежедневная трансформация,
– хуже ортопедия (часто).
— Подъемная кровать в шкафу
+ полноценный матрас,
+ освобождение площади днём,
– сложность и стоимость механизма,
– требования к стенам (крепление).
— Подиум с матрасом
+ большое место для сна,
+ гигантский объём хранения внутри,
– визуально «съедает» высоту,
– не всем удобно забираться.
В 2025 году мебель трансформер для студийной квартиры купить можно уже с учётом веса пользователя, частоты трансформаций и гарантированного ресурса механизма (у многих производителей он указывается в циклах открытий/закрытий). Это важный технический параметр, если кровать ежедневно складывается и раскладывается.
Рабочая зона: встроенная или отдельная
— Встроенная в шкаф/кухню
Хорошо, если работа нерегулярная: откидной стол, выдвижная полка.
— Отдельный стационарный стол
Просится, если вы работаете дома каждый день: нормальный стул, правильная высота столешницы, отдельный свет.
По инженерной логике, если ноутбук открыт у вас 6–8 часов в день, лучше выделить ему устойчивое место и сохранить здоровье спины, чем экономить 0,5 м².
Практика выбора и заказа мебели в студию
На что смотреть при покупке
1. Габариты и проходы
Перед покупкой — замеры до сантиметра, в том числе дверных проёмов и лифта.
2. Механика и фурнитура
Петли с доводчиками, газлифты, направляющие полного выдвижения. Это влияет не только на комфорт, но и на срок службы.
3. Системность
Лучше брать мебель, которую можно донарастить модулями, чем «штучные» элементы.
Когда вы решаете, как оптимизировать пространство и какую функциональную мебель для студии заказать, полезно думать не только о сегодняшнем дне, но и о будущем: появление ребёнка, смена режима работы, изменение привычек.
«Под ключ» vs поэтапный подход
— Проект зонирования студийной квартиры под ключ
Подразумевает, что дизайнер и производитель мебели работают в связке:
— разрабатывается план,
— считаются инженерные нагрузки,
— сразу закладываются выпуск электрики под световые сценарии,
— мебель проектируется под реальные размеры и неровности.
Итог: меньше «сюрпризов» при сборке, меньше зазоров и случайных щелей, точнее эргономика.
— Поэтапная мебель без общего проекта
Дешевле на старте, но есть риск получить «зоопарк модулей», которые конфликтуют между собой и создают визуальный шум.
Финальные практические рекомендации
Минимальный чек‑лист перед покупкой мебели
1. Определить «несдвигаемые» зоны: кухня, санузел, место для сна.
2. Провести замеры помещения и зафиксировать их в масштабе (пусть даже от руки).
3. Нанести на план основные проходы (не уже 60 см).
4. Решить: что в приоритете — гости, работа или максимальный комфорт сна.
5. Подобрать типы мебели под приоритет (диван, кровать, подъемные системы).
6. Проверить высоту до потолка и возможность использовать антресоли/подвесы.
7. Продумать световые сценарии: «дневной», «рабочий», «вечерний».
8. Сравнить стоимость модульных решений и встроенных — иногда индивидуальный проект оказывается незначительно дороже готовых модулей, но сильно выигрывает по функционалу.
9. Уточнить у продавца ресурс механики и условия гарантии.
10. Примерить все решения к своему реальному образу жизни, а не к идеальным картинкам.
Почему в студии нельзя «просто поставить кровать и шкаф»
В раздельной квартире ошибка в расстановке мебели затрагивает одну комнату. В студии любая неудачная вещь влияет на всё: мешает свету, ломает сценарии движения, перегружает визуально. Поэтому в 2025 году студийная квартира — это уже не «маленькое жильё», а компактная система, в которой зонирование и функциональная мебель — такие же инженерные элементы, как проводка или вентиляция.
Если подойти к планированию как к проектированию устройства, с чёткими функциями, ограничениями и ресурсами, то даже 24–28 м² могут работать как полноценная «семейная» квартира. Главное — думать о студии не как о «комнате», а как о «многофункциональном модуле», где каждый предмет и каждый метр оправданы.

